|
|
|
|
|
Dřevostavby rodinných domů |
|
|
|
|
|
Tato stavba je
provedena z nově navržené technologie a to sestavování celého
domku z jednotlivých dřevěných panelů, které jsou vyrobeny
v dílnách dodavatele a následně usazeny na stavbě na předem
připravené základy se základovou odizolovanou deskou. Po
sestavení panelů se zkompletují a opatří stropem a střechou.
|
|
|
|
|
|
Sestavení domku je
provedeno cca do 1 týdne. Následně se provedou veškeré
dokončující práce včetně instalací, potřebné k nastěhování a
dokončení domu. Toto řešení umožňuje dodávku s možností
svépomocného dokončení rodinného domu. |
|
|
|
|
|
Jinak naše firma
provádí celou stavbu na klíč, včetně základů a zemních prací a
případně i s napojením na inženýrské sítě a komunikace. |
|
|
|
|
|
Další vyvolané investice jsou přípojky na inženýrské sítě,
příjezdové komunikace, oplocení apod. Tyto se oceňují a
projektují samostatně. Rovněž případně objekt garáže jako
samostatná stavba. Domy jsou velmi variabilní a nabízejí se
v mnoha různých typech a provedení dle představ a přání
zákazníka. |
|
|
»
nahoru |
|
|
Konstrukce dřevostavby |
|
|
|
|
|
Dům je stavěn
z dřevěných panelů uložených na roznášecích rámech na
odisolovaných základech, či základové desce. Strop je fošnový
uložený na rámech, které jsou usazeny na jednotlivých dřevěných
panelech a tím celou konstrukci zpevňují. Na stropní konstrukci
je pak provedena konstrukce krovu. |
|
|
|
|
|
Jednotlivé panely jsou
vyrobeny před montáží v dílně a následně se montují na stavbě.
Jsou již opatřeny bedněním z OSB desek a s vnitřní izolací
skelnými rohožemi. Panely jsou v síle 190 mm. Po montáži panelů
a ostatních nosných konstrukcí se provedou vnitřní instalace a
vnitřní úpravy stěn a stropů sádrokartonovými konstrukcemi
s izolací polystyrenem, nebo skelnou vatou. Vnější stěny se
opatří buď jen omítkou s perlinkou a fasádními nátěry, nebo
ušlechtilou probarvenou omítkou, případně se opatří vnější
izolací polystyrenem a fasádní úpravou. |
|
|
»
nahoru |
|
|
Provedení a projekce dřevostaveb |
|
|
|
|
|
TYP varianta M-dřevostavba je
nabízen ve 2 základních verzích a to přízemní a podkrovní,
s možností různých úprav dle přání zákazníka.
|
|
|
|
|
|
Rodinný dům je
situován na rovinný terén s 1 N.P. jako přízemí, s nízkou
sedlovou střechou a nebo jako podkrovní se sedlovou střechou. |
|
|
|
|
|
Vstup do domu je do vstupní chodby a dále
s přístupem do obytných místností – obývací pokoj, kuchyň a
pokoj. Dále do koupelny a WC. V případě podkroví, je toto
přístupné dřevěným schodištěm. V podkroví může být půda, nebo
obytné podkrovní místnosti, případně i s koupelnou a WC. |
|
|
|
|
|
Jinak lze projekt a provedení stavby přizpůsobit
co v uspořádání dle přání zákazníka, tak i v konstrukci střechy,
či fasády a podobně. Cena projektové dokumentace je 15.000,- až
25.000,-Kč bez přípojek a to podle rozsahu provedení. |
|
|
»
nahoru |
|
|
|
|
|
Ceník dřevostaveb |
|
|
|
|
|
Varianta |
Cena na klíč |
Cena stavebnice |
|
|
|
(včetně základů a výkopových prací) |
(materiál včetně základní montáže) |
|
|
»
Varianta M - Dřevostavba 1
|
1.405.000,- Kč |
205.000,- Kč |
|
|
»
Varianta M - Dřevostavba 2 |
1.515.000,- Kč |
440.000,- Kč |
|
|
»
Varianta M - Dřevostavba 3 |
1.315.000,- Kč |
175.000,- Kč |
|
|
»
Varianta M - Dřevostavba 4 |
2.880.000,- Kč |
595.000,- Kč |
|
|
|
|
|
Všechny ceny jsou včetně DPH 15%. |
|
|
»
nahoru |
|
|
 |
|
|
Varianty dřevostaveb rodinných domů |
|
|
|
|
|
|
|
|
Varianta M -
Dřevostavba 1 |
|
|
|
|
|
|
|
 |
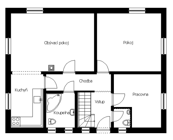
Dispoziční řešení |
..... |
3+1 |
|
|
Zastavěná plocha |
..... |
74,00 m² |
|
|
Užitková
plocha |
..... |
58,60
m² |
|
|
Obytná plocha |
..... |
46,60 m² |
|
|
|
|
|
|
|
Půdorysné rozměry |
..... |
8,80 x 8,40 m |
|
|
|
|
|
|
1.N.P |
|
|
 |
|
|
|
|
|
Vstupní chodba |
..... |
7,10 m² |
|
|
|
|
|
Koupelna s WC |
..... |
4,90 m² |
|
|
|
|
|
Obývací pokoj |
..... |
16,80 m² |
|
|
|
|
|
Kuchyň |
..... |
8,70 m² |
|
|
|
|
|
Pokoj 1 |
..... |
12,70 m² |
|
|
|
|
|
Pokoj 2 |
..... |
8,40 m² |
|
|
|
|
|
»
CENÍK
DŘEVOSTAVEB |
|
|
Varianta M -
Dřevostavba 2 |
|
|
|
|
|
|
|
 |
Dispoziční řešení |
..... |
2+1
s půdou |
|
|
Zastavěná plocha |
..... |
70,00 m² |
|
|
Užitková
plocha |
..... |
57,60
m² |
|
|
Užitková
plocha půdy |
..... |
58,50
m² |
|
|
Obytná plocha |
..... |
53,70 m² |
|
|
|
|
|
|
|
Půdorysné rozměry |
..... |
8,40 x 8,20 m |
|
|
|
|
|
|
1.N.P |
2.N.P |
|
|
 |
 |
|
|
|
|
|
Vstupní hala |
..... |
15,70 m² |
Půda |
..... |
58,50 m² |
|
|
Koupelna s WC |
..... |
3,90 m² |
|
|
|
|
|
Obývací pokoj |
..... |
15,70 m² |
|
|
|
|
|
Kuchyň |
..... |
9,00 m² |
|
|
|
|
|
Pokoj |
..... |
13,30 m² |
|
|
|
|
|
»
CENÍK
DŘEVOSTAVEB |
|
|
Varianta M -
Dřevostavba 3 |
|
|
|
|
|
|
|
 |
Dispoziční řešení |
..... |
2+1 |
|
|
Zastavěná plocha |
..... |
69,90 m² |
|
|
Užitková
plocha |
..... |
57,10
m² |
|
|
Obytná plocha |
..... |
53,20 m² |
|
|
|
|
|
|
|
Půdorysné rozměry |
..... |
8,40 x 8,20 m |
|
|
|
|
|
|
1.N.P |
|
|
 |
|
|
|
|
|
Vstupní hala |
..... |
15,20 m² |
|
|
|
|
|
Koupelna s WC |
..... |
3,90 m² |
|
|
|
|
|
Obývací pokoj |
..... |
15,70 m² |
|
|
|
|
|
Kuchyň |
..... |
9,00 m² |
|
|
|
|
|
Pokoj
|
..... |
13,30 m² |
|
|
|
|
|
»
CENÍK
DŘEVOSTAVEB |
|
|
Varianta M -
Dřevostavba 4 |
|
|
|
|
|
|
|
 |
Dispoziční řešení |
..... |
7+1
|
|
|
Zastavěná plocha |
..... |
97,60 m² |
|
|
Užitková
plocha |
..... |
162,30
m² |
|
|
Obytná plocha |
..... |
135,10 m² |
|
|
|
|
|
|
|
Půdorysné rozměry |
..... |
11,40 x 8,90 m |
|
|
|
|
|
|
1.N.P |
2.N.P |
|
|
 |
 |
|
|
|
|
|
Vstup |
..... |
6,00 m² |
Schody |
..... |
2,80 m² |
|
|
Chodba |
..... |
5,40 m² |
Chodba |
..... |
2,70 m² |
|
|
Koupelna s WC |
..... |
4,90 m² |
Koupelna s WC |
..... |
3,80 m² |
|
|
Obývací pokoj |
..... |
24,30 m² |
Pokoj 1 |
..... |
17,70 m² |
|
|
Kuchyň |
..... |
8,70 m² |
Pokoj 2 |
..... |
24,40 m² |
|
|
Pokoj |
..... |
18,70 m² |
Pokoj 3 |
..... |
11,00 m² |
|
|
Pracovna |
..... |
10,80 m² |
Pokoj 4 |
..... |
19,50 m² |
|
|
WC |
..... |
1,60 m² |
|
|
|
|
|
»
CENÍK
DŘEVOSTAVEB |
|
|
»
nahoru |
|
|
|